Enfin
chez vous !

Appartement 
2 pièces 
42m2 
LE BARCARÈS  
199 000 euros

+9 Afficher toutes les photos
Afficher le diaporama

Caractéristiques détaillées

Surfaces : 42m2 Pièces : 2
Chambres : 1 Nb. de WC : 1
Nb. de salles d'eau : 1 Etage du bien : 3eme
Climatisation Chauffage : individuel
Nb. Etages : 3 Ascenseur
Sans vis-à-vis Orientation : ouest
Terrasse Nb. Parking : 1
Parking Garage
Année de construction : 2025 Copropriété
Voir toutes les caractéristiques Fermer
  • Appartement 2 pièces  à vendre Barcarès (Le) 66420

Descriptif du bien

LE BARCARÈS  / Appartement  / 2 pièces
199 000 €
Honoraires à charge du vendeur
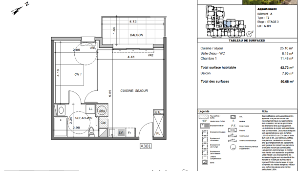
Le Barcarès Village, à seulement 150 mètres de la plage, découvrez ce T2 de 42,73 m² habitables avec terrasse de 7,95 m², situé au 3ème étage, offrant une vue sur la pinède, avec parking privatif. Emplacement prisé et de choix dans une belle résidence Neuve. Au coeur de cette station balnéaire préservée et vivante avec ses 8 km de côtes, c'est un lieu idéal pour vivre ou investir. La résidence LE BAHIA se compose de 35 logements du 2 au 4 pièces, avec terrasses sans vis-à-vis, vue mer possible, stationnements (parking ou garage), pinède privée dans la résidence, ascenseur, cuisine équipée. Cette résidence respecte les normes RE 2020, avec climatisation dans la pièce de vie et une salle d'eau aménagée. D'autres logements sont disponibles à la vente, du T2 au T4, avec possibilité d'acheter un garage en supplément. Pour toute question ou information, rendez-vous à notre agence. Notre maîtrise du secteur et notre disponibilité sont à votre service pour vous accompagner dans ce projet. Vous aurez tout à portée de main : grandes plages préservées, activités nautiques, marchés, pistes cyclables, commerces, écoles, loisirs et médecins. La résidence LE BAHIA, implantée dans un parc résidentiel paysager, s'intègre harmonieusement dans son environnement avec une architecture en trois dimensions, façades ornées de balcons aux formes variées. Tous les logements disposent de balcons sans vis-à-vis, certains avec vue mer. Les grandes baies vitrées en aluminium laqué s'ouvrent sur des balcons lumineux grâce à leurs garde-corps opaques, faisant des espaces extérieurs un prolongement naturel des intérieurs. Livraison prévisionnelle 1er trimestre 2027.
Référence : 30459

Caractéristiques détaillées

Surfaces : 42m2 Pièces : 2
Chambres : 1 Nb. de WC : 1
Nb. de salles d'eau : 1 Etage du bien : 3eme
Climatisation Chauffage : individuel
Nb. Etages : 3 Ascenseur
Sans vis-à-vis Orientation : ouest
Terrasse Nb. Parking : 1
Parking Garage
Année de construction : 2025 Copropriété
Voir toutes les caractéristiques Fermer

Contacter l'agence

Localisation : LE BARCARÈS

Le vendeur n'a pas communiqué l'adresse précise de ce bien
Demander l'adresse précise à l'agence

Recevez les annonces similaires directement par mail