Enfin
chez vous !

Appartement 
4 pièces 
80m2 
GRENOBLE 
428 000 euros

+3 Afficher toutes les photos
Afficher le diaporama

Caractéristiques détaillées

Surfaces : 80m2 Pièces : 4
Chambres : 3 WC séparés
Nb. de salles d'eau : 1 Nb. de WC : 1
Ascenseur Orientation : sud est
Terrasse Nombre de lots de la copropriété : 9
Copropriété
Voir toutes les caractéristiques Fermer

Descriptif du bien

GRENOBLE  / Appartement  / 4 pièces
428 000 €
Honoraires à charge du vendeur
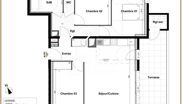
Appartement T4 avec Terrasse en hyper-centre Plongez dans un univers de confort et de modernité avec cet appartement T4, situé dans un cadre de vie exceptionnel. Cet appartement de 80 m², orienté sud-est, baigne de lumière naturelle tout au long de la journée, créant une atmosphère chaleureuse et accueillante. L'appartement se compose de quatre pièces spacieuses, dont trois chambres idéales pour une petite famille. La salle de bains, moderne et fonctionnelle, est conçue pour votre bien-être quotidien. Un WC indépendant assure une intimité et un confort supplémentaires. La cuisine, ouverte sur le séjour, est un véritable espace de vie où vous pourrez laisser libre cours à votre créativité culinaire. Mais ce qui fait vraiment la différence, c'est la terrasse de 18 m², un véritable havre de paix où vous pourrez profiter des beaux jours. L'ascenseur, présent dans la résidence, vous offre un accès facile et pratique à votre appartement. Les parties communes, tout comme l'intérieur de l'appartement, bénéficieront d'un excellent niveau de prestation, garantissant un cadre de vie agréable et sécurisé. En plus de son charme et de son confort, cet appartement est idéalement situé, au croisement de la rue Thiers et de la rue des Bergers, bénéficiant d'une localisation privilégiée en hyper-centre de Grenoble, au coeur du quartier Championnet. Concernant l'immeuble, les prestations sont soignées : chauffage par géothermie, eau chaude par ballons thermodynamiques, chauffage et rafraîchissement par le sol, panneaux solaires sur le toit de l'immeuble? Ne manquez pas cette opportunité unique de vous offrir un cadre de vie exceptionnel, alliant modernité, confort et praticité. Contactez-nous dès aujourd'hui pour découvrir par vous-même tout le potentiel de cet appartement. Honoraires à la charge du vendeur. Dans une copropriété de 9 lots. Aucune procédure n'est en cours. Non soumis au DPE. Les informations sur les risques auxquels ce bien est exposé sont disponibles sur le site Géorisques : georisques. gouv. fr.
Référence : 112842

Caractéristiques détaillées

Surfaces : 80m2 Pièces : 4
Chambres : 3 WC séparés
Nb. de salles d'eau : 1 Nb. de WC : 1
Ascenseur Orientation : sud est
Terrasse Nombre de lots de la copropriété : 9
Copropriété
Voir toutes les caractéristiques Fermer

Contacter l'agence

Localisation : GRENOBLE

Le vendeur n'a pas communiqué l'adresse précise de ce bien
Demander l'adresse précise à l'agence

Recevez les annonces similaires directement par mail