Enfin
chez vous !

Appartement 
3 pièces 
52m2 
GRENOBLE 
125 000 euros

+4 Afficher toutes les photos
Afficher le diaporama

Caractéristiques détaillées

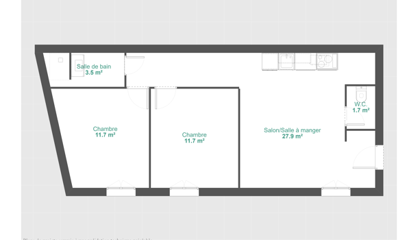
Surfaces : 52m2 Pièces : 3
Chambres : 2 Nb. de salles de bain : 1
Nb. de WC : 1 Etage du bien : 2eme
Nb. Etages : 2 Chauffage : CONVECTEUR
Orientation : EST Calme
Cour Terrasse
Nombre de lots de la copropriété : 5
Voir toutes les caractéristiques Fermer
  • Appartement 3 pièces  à vendre Grenoble 38000

Descriptif du bien

GRENOBLE  / Appartement  / 3 pièces
125 000 €
Honoraires à charge du vendeur
Grenoble opportunité rare - idéal investisseurs ou résidence principale personnalisée En hyper centre ville et au calme (rue piétonne). Donnez vie à votre projet avec la création d'un 3 pièces + cuisine avec ce plateau de 52 m² au 2ème et dernier étage. Bâtiment situé en cour intérieure au 26 bis rue St Jacques, vous serez au calme tout en étant en hypercentre avec toutes les commodités nécessaires. Un devis de rénovation global est disponible sur demande (environ 40 keuros) Ce plateau laisse libre court à votre imagination, nous pouvons également vous mettre en relation avec les entreprises et maître d'oeuvre pour réaliser les travaux nécessaires. Toutes les autorisation ont été obtenu. Le ravalement de façades vient tout juste d'être terminé. Et rare, vous aurez la jouissance privative d'une partie de la cour intérieure afin de vous créez une terrasse extèrieure. Pour l'instant le DPE est vierge du fait de l'absence de système de chauffage. Très faibles charges de copropriété. Les honoraires d'agence sont à la charge du vendeur. N'hésitez pas à me contacter pour une visite : Jérôme O680911620. «Les informations sur les risques auxquels ce bien est exposé sont disponibles sur le site Géorisques http://www.georisques.gouv.fr».
Référence : 1020681BIS

Caractéristiques détaillées

Surfaces : 52m2 Pièces : 3
Chambres : 2 Nb. de salles de bain : 1
Nb. de WC : 1 Etage du bien : 2eme
Nb. Etages : 2 Chauffage : CONVECTEUR
Orientation : EST Calme
Cour Terrasse
Nombre de lots de la copropriété : 5
Voir toutes les caractéristiques Fermer

Contacter l'agence

Localisation : GRENOBLE

Le vendeur n'a pas communiqué l'adresse précise de ce bien
Demander l'adresse précise à l'agence

Recevez les annonces similaires directement par mail