Enfin
chez vous !

Appartement 
1 pièces 
19m2 
LIMOGES 
96 600 euros

+6 Afficher toutes les photos
Afficher le diaporama

Caractéristiques détaillées

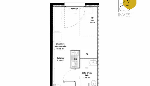
Surfaces : 19m2 Pièces : 1
Nb. de WC : 1 Nb. de salles d'eau : 1
Nb. Etages : 6 Cuisine : Americaine -Semi-equipee
Etage du bien : 1er Nombre de lots de la copropriété : 211
Voir toutes les caractéristiques Fermer

Descriptif du bien

LIMOGES  / Appartement  / 1 pièces
96 600 €
Dans une résidence pour étudiants idéalement placée à limoges à proximité des commodités et du centre ville. Studio de 19 m² comprenant une entrée, une salle d'eau et wc, un espace cuisine prééquipé, un espace salon et nuit. Prix global de 96 600 euros ttc decomposé comme suit : foncier 22575 euros / travaux 74025 euros. Bénéficiez d'une réduction d'impôts sur la totalité des travaux, loyer garanti y compris vacance locative. Dans le cadre d'une réhabilitation totale, la résidence comprendra 211 logements pour étudiants jusqu'au t2 avec de nombreux espaces partagés. Un investissement locatif pérenne. Pour tout contact et renseignement, jacques roche : 06.11. 56.02. 65 / mail : jacques@dmcdinvest.com.
Référence : RJVST50014047

Caractéristiques détaillées

Surfaces : 19m2 Pièces : 1
Nb. de WC : 1 Nb. de salles d'eau : 1
Nb. Etages : 6 Cuisine : Americaine -Semi-equipee
Etage du bien : 1er Nombre de lots de la copropriété : 211
Voir toutes les caractéristiques Fermer

Contacter l'agence

Localisation : LIMOGES

Le vendeur n'a pas communiqué l'adresse précise de ce bien
Demander l'adresse précise à l'agence

Recevez les annonces similaires directement par mail