Enfin
chez vous !

Appartement 
2 pièces 
40m2 
MARSEILLE 9EME 
189 000 euros

+8 Afficher toutes les photos
Afficher le diaporama

Caractéristiques détaillées

Surfaces : 40m2 Pièces : 2
Chambres : 1 Nb. de salles d'eau : 1
Nb. de WC : 1 Climatisation
Nb. Etages : 5 Ascenseur
Chauffage : individuel radiateur Etage du bien : 3eme
Calme Quartier : Maison Blanche
Terrasse Alarme
Interphone Année de construction : 2023
Détail de la procédure : Pas de procédure en cours Copropriété
Nombre de lots de la copropriété : 80 Moyenne de la quote part (an) : 1 080 €
Voir toutes les caractéristiques Fermer
  • EXCLUSIVITÉ
    Appartement 2 pièces  à vendre Marseille 9eme 13009

Descriptif du bien

MARSEILLE 9EME  / Appartement  / 2 pièces
189 000 €
EXCLUSIVITÉ
Honoraires à charge du vendeur
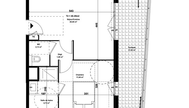
T2 récent avec grande terrasse - Résidence 2023 - Calme et lumineux - Parc Maison Blanche Rue Gaston Berger - 13010 Au sein d'une résidence récente livrée en 2023, parfaitement entretenue et entourée d'espaces verts, découvrez ce superbe appartement T2 de 40 m² situé au 3e étage sur 5 avec ascenseur. L'appartement séduit immédiatement par sa luminosité, son calme et sa belle terrasse de 13,33 m² exposée sud-est, idéale pour profiter des beaux jours. Il bénéficie également d'un emplacement recherché, à seulement 7 minutes à pied du Parc de la Maison Blanche, l'un des grands espaces verts du secteur. Agencement     -   Séjour avec cuisine ouverte équipée : 20 m²     -   Chambre confortable : 11,44 m²     -    Salle de bain : 4,73 m²     -   WC séparés L'ensemble est en excellent état, avec des prestations modernes et une distribution très fonctionnelle. Prestations     -   Résidence livrée en 2023 (encore sous garantie décennale)     -    Cuisine équipée récente     -    Alarme installée     -    Possibilité d'installation de climatisation     -    radiateurs thermostatiques individuels par chaudière     -    Ascenseur     -    Environnement très calme et verdoyant Copropriété     -    Charges : 90 ? / mois     -    Taxe foncière : 343 ? Stationnement Place de stationnement disponible en supplément. Lors de la dernière assemblée générale, plusieurs améliorations ont été votées et adoptées :     -   Possibilité de boxer les places de stationnement     -    Installation de vidéosurveillance     -    Bornes de recharge pour véhicules électriques Les + qui font la différence     -    Résidence très récente     -    Grande terrasse     -    Très lumineux     -    Calme     -    Proximité du parc     -    Faibles charges Appartement idéal pour résidence principale, premier achat ou investissement locatif. Copropriété de 80 lots - dont 40 lots habitation. (Pas de procédure en cours). Charges annuelles : 1080.00 euros.
Référence : 202

Caractéristiques détaillées

Surfaces : 40m2 Pièces : 2
Chambres : 1 Nb. de salles d'eau : 1
Nb. de WC : 1 Climatisation
Nb. Etages : 5 Ascenseur
Chauffage : individuel radiateur Etage du bien : 3eme
Calme Quartier : Maison Blanche
Terrasse Alarme
Interphone Année de construction : 2023
Détail de la procédure : Pas de procédure en cours Copropriété
Nombre de lots de la copropriété : 80 Moyenne de la quote part (an) : 1 080 €
Voir toutes les caractéristiques Fermer

Performances énergétiques

DPE B(10)
GES B(10)
DPE (Diagnostic de Performance Énergétique)
Logement économe
GES (Gaz à Effet de Serre)
Faible émission de GES

Contacter l'agence

Localisation : MARSEILLE 9EME

Le vendeur n'a pas communiqué l'adresse précise de ce bien
Demander l'adresse précise à l'agence

Recevez les annonces similaires directement par mail