Enfin
chez vous !

Appartement 
2 pièces 
38m2 
NIORT 
178 280 euros

+6 Afficher toutes les photos
Afficher le diaporama

Caractéristiques détaillées

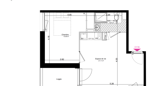
Surfaces : 38m2 Pièces : 2
Chambres : 1 Nb. de salles d'eau : 1
Nb. de WC : 1 Etage du bien : 1er
Chauffage : collectif gaz radiateur Nb. Etages : 4
Ascenseur Orientation : sud ouest
Terrasse Parking
Gardien Année de construction : 2025
Copropriété Nombre de lots de la copropriété : 221
Voir toutes les caractéristiques Fermer

Descriptif du bien

NIORT  / Appartement  / 2 pièces
178 280 €
Honoraires à charge du vendeur
 A VENDRE APPARTEMENT TYPE 2 - INVESTISSEMENT LOCATIF EN LMNP  - La résidence Venezia profite d'un emplacement stratégique (à 7 min à pied de l'arrêt de bus « Hôpital ») facilitant l'accès aux nombreux pôles universitaires. Venezia bénéficie de tout le confort nécessaire au quotidien avec de nombreux commerces de proximité (Carrefour Market, pharmacie, tabac, boulangerie, à 10 min à pied) A seulement 6 minutes en vélo du centre-ville de Niort, la résidence bénéficie d'un emplacement central permettant aux étudiants d'accéder à toutes les commodités rapidement : o Lignes de bus à proximité : Ligne 1 : arrêt « Hôpital » à 600 m reliant à la résidence à Niort Pôle Universitaire Ligne 7 : arrêt « Hôpital » à 600 m reliant à plusieurs points d'intérêts du centre-ville de Niort o Gare de Niort à 1 km de la résidence, desservie par les TGV (direction Paris en 2h) et TER (Direction La Rochelle et Poitiers) La Résidence est une copropriété de 221 logements collectifs (T1 et T2) répartis sur 4 bâtiments en R + 2+ attiques et 100 places de parking semi-couvertes en RDC des 4 bâtiments.   VENTE LMNP - Résidence clôturée et sécurisée, vastes espaces verts arborés, terrasse en potagers partagés en roof-top. La résidence propose des espaces communs en rez-de-chaussée du bâtiment B : · Salle commune + cuisine équipée · Espace coworking · Salle de fitness · Laverie · Espace vélos · Bureau d'accueil · Salle de cinéma · Logements meublés et optimisés grâce à de nombreux rangements LIVRAISON : 3ème Trimestre 2025.
Référence : 677

Caractéristiques détaillées

Surfaces : 38m2 Pièces : 2
Chambres : 1 Nb. de salles d'eau : 1
Nb. de WC : 1 Etage du bien : 1er
Chauffage : collectif gaz radiateur Nb. Etages : 4
Ascenseur Orientation : sud ouest
Terrasse Parking
Gardien Année de construction : 2025
Copropriété Nombre de lots de la copropriété : 221
Voir toutes les caractéristiques Fermer

Performances énergétiques

DPE NC
GES A
DPE (Diagnostic de Performance Énergétique)
Logement économe
GES (Gaz à Effet de Serre)
Faible émission de GES

Contacter l'agence

Contacter l'agence

AFFICHER LE NUMÉRO 05 46 55 04 96
ASHLEY CORDOUAN IMMOBILIER
12 rue Pas du Minage
17000 La rochelle

Localisation : NIORT

Le vendeur n'a pas communiqué l'adresse précise de ce bien
Demander l'adresse précise à l'agence

Recevez les annonces similaires directement par mail