Enfin
chez vous !

Appartement 
2 pièces 
63m2 
ROCHEFORT 
332 500 euros

+9 Afficher toutes les photos
Afficher le diaporama

Caractéristiques détaillées

Surfaces : 63m2 Pièces : 2
Chambres : 1 Cave
Nb. de WC : 1 Nb. de salles d'eau : 1
Nb. Etages : 1 Ascenseur
Chauffage : Electrique individuel Terrasse
Jardin Parking
Nb. Parking : 1 Etat général : neuf
Copropriété Nombre de lots de la copropriété : 47
Moyenne de la quote part (an) : 720 €
Voir toutes les caractéristiques Fermer
  • EXCLUSIVITÉ
    Appartement 2 pièces  à vendre Rochefort 17300
  • Contacter l'agence

    AFFICHER LE NUMÉRO 05 46 87 18 33
    ORPI LA FAYETTE IMMOBILIER
    42, Avenue La Fayette
    17300 Rochefort

Descriptif du bien

ROCHEFORT  / Appartement  / 2 pièces
332 500 €
EXCLUSIVITÉ
Honoraires à charge du vendeur
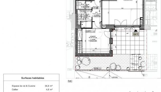
Rochefort en hyper centre-ville dans une résidence sécurisée avec ascenseurs, dans un ancien hôtel particulier de 1750. En RDC, un grand appartement de type deux de 63 m² toutes prestations avec un bel espace de vie ouvert sur une terrasse privative, une cuisine, un cellier, une chambre avec un double placard, une salle d'eau et un WC. Avec une place de stationnement privative dans un parking souterrain, également accessible par ascenseur, et une cave dans un ensemble immobilier paysagé exposé plein sud. Dommage Ouvrage, garantie décennale et frais de notaire réduits. Référence agence : 1463.
Référence : 2S6H-SYE-GTT

Caractéristiques détaillées

Surfaces : 63m2 Pièces : 2
Chambres : 1 Cave
Nb. de WC : 1 Nb. de salles d'eau : 1
Nb. Etages : 1 Ascenseur
Chauffage : Electrique individuel Terrasse
Jardin Parking
Nb. Parking : 1 Etat général : neuf
Copropriété Nombre de lots de la copropriété : 47
Moyenne de la quote part (an) : 720 €
Voir toutes les caractéristiques Fermer

Performances énergétiques

DPE B(108)
GES A(4)
DPE (Diagnostic de Performance Énergétique)
Logement économe
GES (Gaz à Effet de Serre)
Faible émission de GES

Contacter l'agence

Contacter l'agence

AFFICHER LE NUMÉRO 05 46 87 18 33
ORPI LA FAYETTE IMMOBILIER
42, Avenue La Fayette
17300 Rochefort

Localisation : ROCHEFORT

Le vendeur n'a pas communiqué l'adresse précise de ce bien
Demander l'adresse précise à l'agence

Recevez les annonces similaires directement par mail