Enfin
chez vous !

Appartement 
4 pièces 
149m2 
ROCHEFORT 
695 000 euros

+6 Afficher toutes les photos
Afficher le diaporama

Caractéristiques détaillées

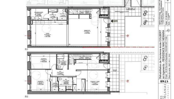
Surfaces : 149m2 Pièces : 4
Chambres : 3 Nb. de salles d'eau : 2
Nb. de WC : 2 Cave
Nb. Etages : 2 Chauffage : Electrique individuel
Ascenseur Terrasse
Garage Etat général : neuf
Copropriété Moyenne de la quote part (an) : 900 €
Nombre de lots de la copropriété : 47
Voir toutes les caractéristiques Fermer
  • EXCLUSIVITÉ
    Appartement 4 pièces  à vendre Rochefort 17300
  • Contacter l'agence

    AFFICHER LE NUMÉRO 05 46 87 18 33
    ORPI LA FAYETTE IMMOBILIER
    42, Avenue La Fayette
    17300 Rochefort

Descriptif du bien

ROCHEFORT  / Appartement  / 4 pièces
695 000 €
EXCLUSIVITÉ
Honoraires à charge du vendeur
Rochefort en hypercentre ville dans une résidence sécurisée, dans un ancien hôtel particulier de 1730, appartement de 5 pièces toutes prestations avec ascenseur privatif, avec un bel espace de vie ouvert sur une terrasse privative, une cuisine aménagée et équipée, un cellier, 3 chambres dont une suite parentale (dressing et salle d'eau), un deuxième dressing et une seconde salle d'eau. Une cave et un garage privatif dans un ensemble immobilier paysagé et arboré exposé plein sud. Dommage Ouvrage et frais de notaire réduits. Référence agence : 1463.
Référence : UC00-58Z-9T9

Caractéristiques détaillées

Surfaces : 149m2 Pièces : 4
Chambres : 3 Nb. de salles d'eau : 2
Nb. de WC : 2 Cave
Nb. Etages : 2 Chauffage : Electrique individuel
Ascenseur Terrasse
Garage Etat général : neuf
Copropriété Moyenne de la quote part (an) : 900 €
Nombre de lots de la copropriété : 47
Voir toutes les caractéristiques Fermer

Contacter l'agence

Contacter l'agence

AFFICHER LE NUMÉRO 05 46 87 18 33
ORPI LA FAYETTE IMMOBILIER
42, Avenue La Fayette
17300 Rochefort

Localisation : ROCHEFORT

Le vendeur n'a pas communiqué l'adresse précise de ce bien
Demander l'adresse précise à l'agence

Recevez les annonces similaires directement par mail