Enfin
chez vous !

Appartement 
5 pièces 
110m2 
TOULON 
580 000 euros

+5 Afficher toutes les photos
Afficher le diaporama

Caractéristiques détaillées

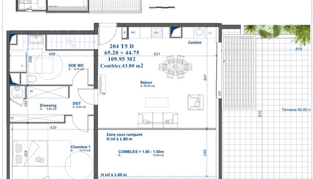
Surfaces : 110m2 Pièces : 5
Chambres : 4 Nb. de WC : 2
Nb. de salles de bain : 2 Etage du bien : 2eme
Climatisation Nb. Etages : 2
Accès handicapés Chauffage : individuel
Ascenseur Calme
Orientation : sud Jardin
Terrasse Box
Année de construction : 2027 Nombre de lots de la copropriété : 12
Voir toutes les caractéristiques Fermer

Descriptif du bien

TOULON  / Appartement  / 5 pièces
580 000 €
EXCLUSIVITÉ
Niché au coeur d'un vaste écrin de verdure de 6000 m², Green Park est une véritable invitation à la sérénité. Cette résidence intimiste, à l'architecture élégante et contemporaine, propose de spacieux appartements baignés de lumière, prolongés par de grandes terrasses qui s'ouvrent sur la nature environnante. L'INTIMITÉ D'UNE RÉSIDENCE CONFIDENTIELLE Composée de seulement 12 appartements répartis sur 2 niveaux, Green Park offre un cadre de vie paisible et convivial, à l'abri de l'agitation urbaine. Ici, tout est pensé pour préserver le calme et l'harmonie du lieu. UN DOMAINE PRIVÉ À DEUX PAS DE TOUT Bien que lovée dans un environnement verdoyant, la résidence bénéficie d'un emplacement privilégié : À quelques minutes du centre-ville et de toutes ses commodités, Proche des plages pour des escapades en bord de mer, Et à deux pas de la piste cyclable, idéale pour vos balades ou déplacements quotidiens. Entièrement clôturée et sécurisée, orientée plein sud face au jardin, Green Park combine tranquillité absolue et proximité immédiate de tout ce qui facilite la vie. LE PLAISIR DE LA SIMPLICITÉ Green Park, c'est aussi un art de vivre : une promenade à vélo sur la piste cyclable toute proche, une cueillette au potager à savourer sur les tables du parc, l'observation des oiseaux au nichoir, ou simplement le bonheur d'une sieste à l'ombre des arbres. DES ESPACES INSPIRÉS 12 logements seulement Appartements T3 à T5 de plus de 100 m² Terrasses généreuses jusqu'à 66 m² 30 emplacements de stationnement Box individuels et stationnement pour chaque logement DES PRESTATIONS HAUT DE GAMME Terrasses équipées (point lumineux, d'eau et électrique) Menuiseries anthracite coulissantes ou à la française Carrelage 60x60 large choix de teintes Peinture blanche mate lessivable avec teinte d'accent au séjour Receveur de douche extra-plat WC suspendus Faïences 30x60 grand choix de coloris Robinetterie haut de gamme Appartement connecté Climatisation réversible dans le séjour Appartements entièrement personnalisables.
Référence : 450236

Caractéristiques détaillées

Surfaces : 110m2 Pièces : 5
Chambres : 4 Nb. de WC : 2
Nb. de salles de bain : 2 Etage du bien : 2eme
Climatisation Nb. Etages : 2
Accès handicapés Chauffage : individuel
Ascenseur Calme
Orientation : sud Jardin
Terrasse Box
Année de construction : 2027 Nombre de lots de la copropriété : 12
Voir toutes les caractéristiques Fermer

Contacter l'agence

Contacter l'agence

AFFICHER LE NUMÉRO 04 94 12 82 00
AGENCE DU MOULIN VIEUX H
7 Avenue Jean-Jacques PERRON
83400 Hyeres

Localisation : TOULON

Le vendeur n'a pas communiqué l'adresse précise de ce bien
Demander l'adresse précise à l'agence

Recevez les annonces similaires directement par mail