Enfin
chez vous !

Appartement 
4 pièces 
85m2 
VOIRON 
315 000 euros

+5 Afficher toutes les photos
Afficher le diaporama

Caractéristiques détaillées

Surfaces : 85m2 Pièces : 4
Chambres : 3 WC séparés
Nb. de salles de bain : 1 Nb. de WC : 1
Accès handicapés Nb. Etages : 2
Chauffage : individuel gaz Orientation : sud ouest
Vue : Dégagée Terrasse
Jardin Garage
Interphone Année de construction : 2026
Copropriété Nombre de lots de la copropriété : 36
Voir toutes les caractéristiques Fermer

Descriptif du bien

VOIRON  / Appartement  / 4 pièces
315 000 €
Honoraires à charge du vendeur
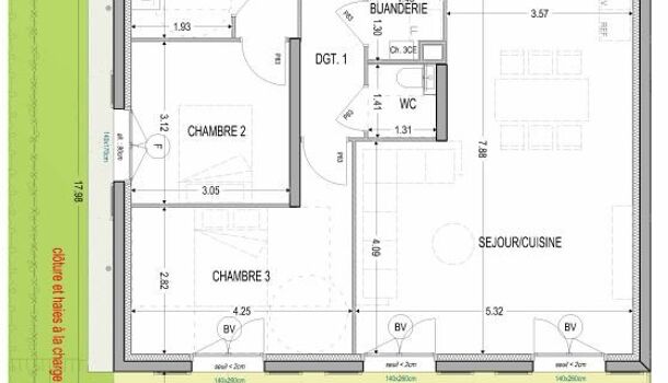
Hauteurs de Voiron Secteur Criel - PROGRAMME NEUF ! Dans un cadre privilégié, venez découvrir cet appartement T4 de 85 m² habitables situé en rez de jardin d'une petite copropriété de 5 lots. Il dispose d'une belle pièce à vivre de 35 m² donnant accès à la terrasse & au jardin. Un espace nuit comprenant 3 chambres & une salle de bains. Cellier / Buanderie & toilette indépendant. Chauffage Individuel Gaz. Menuiseries PVC Double Vitrage. Garage de 20 m² en supplément. Vous serez séduits par sa terrasse de 29 m² ouverte sur un jardin de 64 m² offrant une vue dégagée sur les massifs. Px : 315 000 euros (Honoraires Charge Vendeur). Bien non soumis au DPE. Cette résidence bénéficie de Prix en TVA à 5,5 % (Voir conditions). Livraison prévue : 1er Trimestre 2027. NOUS CONTACTER POUR PLUS DE RENSEIGNEMENTS ! Honoraires à la charge du vendeur. Dans une copropriété de 36 lots. Aucune procédure n'est en cours. Non soumis au DPE. Les informations sur les risques auxquels ce bien est exposé sont disponibles sur le site Géorisques : georisques. gouv. fr.
Référence : 112464

Caractéristiques détaillées

Surfaces : 85m2 Pièces : 4
Chambres : 3 WC séparés
Nb. de salles de bain : 1 Nb. de WC : 1
Accès handicapés Nb. Etages : 2
Chauffage : individuel gaz Orientation : sud ouest
Vue : Dégagée Terrasse
Jardin Garage
Interphone Année de construction : 2026
Copropriété Nombre de lots de la copropriété : 36
Voir toutes les caractéristiques Fermer

Contacter l'agence

Localisation : VOIRON

Le vendeur n'a pas communiqué l'adresse précise de ce bien
Demander l'adresse précise à l'agence

Recevez les annonces similaires directement par mail