Enfin
chez vous !

maison 
5 pièces 
146m2 
ANGRESSE 
669 000 euros

+5 Afficher toutes les photos
Afficher le diaporama

Caractéristiques détaillées

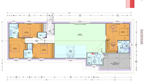
Surfaces : 146m2 Pièces : 5
Chambres : 4 Nb. de salles d'eau : 2
Nb. de salles de bain : 1 Nb. de WC : 2
Cuisine : Americaine -Equipee Chauffage : AU SOL
Orientation : OUEST Jardin
Piscine Terrasse
Garage Parking
Voir toutes les caractéristiques Fermer
  • Villa / Maison 5 pièces  à vendre Angresse 40150
  • Contacter l'agence

    AFFICHER LE NUMÉRO 05 58 77 97 97
    CARMEN TYROSSE
    84, avenue nationale
    40230 Saint vincent de tyrosse

Descriptif du bien

ANGRESSE  / Villa / maison  / 5 pièces
669 000 €
Honoraires à charge du vendeur
Sur la commune d'Angresse, à quelques minutes du bourg, soyez les premiers à vivre dans cette maison de plain-pied de 146 m² sur une parcelle de 801 m². Construction neuve, donc frais de notaire réduits, sous garantie décennale et dommage ouvrage. Vous pourrez profiter d'une grande pièce de vie de 60 m², ouverte sur une cuisine équipée haut de gamme avec îlot de cuisson. Tous les plans de travail sont en Dekton, un matériau minéral très résistant. Concernant la partie nuit, la maison dispose d'une suite parentale avec dressing et salle d'eau de 25 m², ainsi que de trois autres chambres. Une salle de bain et une deuxième salle d'eau complètent le bien. Enfin, une buanderie et un garage viennent maximiser le rangement. La maison est très économe grâce à un plancher chauffant couplé à une pompe à chaleur et un ballon thermodynamique pour la production d'eau chaude. Côté extérieur, vous pourrez profiter d'une baie à galandage XXL qui s'ouvre sur une terrasse coulissante en acoya, idéale pour accueillir votre salon de jardin. Vous pourrez également profiter de la piscine chauffée, ainsi que du boulodrome pour animer vos soirées d'été. Le jardin a été aménagé par un paysagiste pour mettre en valeur les extérieurs et préserver votre intimité, à l'abri des regards.
Référence : VMA20590878437

Caractéristiques détaillées

Surfaces : 146m2 Pièces : 5
Chambres : 4 Nb. de salles d'eau : 2
Nb. de salles de bain : 1 Nb. de WC : 2
Cuisine : Americaine -Equipee Chauffage : AU SOL
Orientation : OUEST Jardin
Piscine Terrasse
Garage Parking
Voir toutes les caractéristiques Fermer

Performances énergétiques

DPE A(37)
GES A(1)
DPE (Diagnostic de Performance Énergétique)
Logement économe
GES (Gaz à Effet de Serre)
Faible émission de GES

Contacter l'agence

Contacter l'agence

AFFICHER LE NUMÉRO 05 58 77 97 97
CARMEN TYROSSE
84, avenue nationale
40230 Saint vincent de tyrosse

Localisation : ANGRESSE

Le vendeur n'a pas communiqué l'adresse précise de ce bien
Demander l'adresse précise à l'agence

Recevez les annonces similaires directement par mail