Enfin
chez vous !

maison 
4 pièces 
90m2 
CASTELNAU-LE-LEZ 
449 000 euros

+9 Afficher toutes les photos
Afficher le diaporama

Caractéristiques détaillées

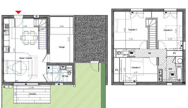
Surfaces : 90m2 Pièces : 4
Chambres : 3 Nb. de WC : 2
Nb. de salles de bain : 1 Chauffage : individuel
Climatisation Nb. Etages : 2
Quartier : MONTPELLIER Calme
Orientation : est ouest Terrasse
Jardin Garage
Interphone Année de construction : 2025
Copropriété Nombre de lots de la copropriété : 12
Moyenne de la quote part (an) : 100 €
Voir toutes les caractéristiques Fermer
  • Villa / Maison 4 pièces  à vendre Castelnau-le-Lez 34170
  • Contacter l'agence

    AFFICHER LE NUMÉRO 04 68 67 59 60

    Casting Immobilier
    53 Avenue Jean Giraudoux
    66000 Perpignan

Descriptif du bien

CASTELNAU-LE-LEZ  / Villa / maison  / 4 pièces
449 000 €
Honoraires à charge du vendeur
VENTE A CASTELNAU-LE-LEZ (34), à quelques minutes de Montpellier, Dans un nouveau collectif neuf, au pied du TRAM ligne 2, villa en deux-trois faces, de type T4, d'une surface habitable de 88 m² environ. Au rez-de-chaussée : les pièces de vie : séjour-cuisine (30 m²) + un toilette et le garage. À l'étage : 3 spacieuses chambres, salle de bains, et un deuxième 'toilette' séparé. Côté extérieur : un sympathique jardin privatif (45 m²) et une terrasse. Un concept d'habitat qui privilégie les volumes ouverts et une parfaite continuité entre espace intérieur et extérieur. Belles prestations actuelles : climatisation réversible, volets roulants électriques, double vitrage, parquet dans chambres, porte garage automatique et portail automatique. Prévoir cuisine à aménager et équiper. Résidence avec local à vélo. 12 copropriétaires. Au calme, sans nuisance, avec tous les commerces à proximité. VILLA No09. Castelnau-le-Lez, une commune française située en Occitanie, est une ville à la fois dynamique et verdoyante. Elle est située à seulement 3 kilomètres au nord de Montpellier, la capitale régionale. La ville est entourée par le Lez, une rivière qui serpente à travers la vallée du même nom. Les rives du Lez sont un lieu de promenade et de détente très apprécié des habitants et des visiteurs. On y trouve de nombreux parcs et jardins, ainsi que des pistes cyclables et des sentiers de randonnée. Ce bien est soumis au statut de la copropriété. Quote-part annuelle des charges : - EUR / an (Incluant l'entretien des parties communes, l'électricité des communs, l'eau, l'assurance et les frais de syndic). Détails complets du syndicat de copropriété disponibles sur demande. CASTING IMMOBILIER, Agence immobilière à Perpignan (66), pour l'achat, la vente, la location et la gestion de votre bien immobilier, 04 68 67 59 60. Les informations sur les risques auxquels ce bien est exposé sont disponibles sur le site Géorisques : www.georisques.gouv.fr.
Référence : 1656

Caractéristiques détaillées

Surfaces : 90m2 Pièces : 4
Chambres : 3 Nb. de WC : 2
Nb. de salles de bain : 1 Chauffage : individuel
Climatisation Nb. Etages : 2
Quartier : MONTPELLIER Calme
Orientation : est ouest Terrasse
Jardin Garage
Interphone Année de construction : 2025
Copropriété Nombre de lots de la copropriété : 12
Moyenne de la quote part (an) : 100 €
Voir toutes les caractéristiques Fermer

Performances énergétiques

DPE A(40)
GES A(1)
DPE (Diagnostic de Performance Énergétique)
Logement économe
GES (Gaz à Effet de Serre)
Faible émission de GES

Contacter l'agence

Contacter l'agence

AFFICHER LE NUMÉRO 04 68 67 59 60

Casting Immobilier
53 Avenue Jean Giraudoux
66000 Perpignan

Localisation : CASTELNAU-LE-LEZ

Le vendeur n'a pas communiqué l'adresse précise de ce bien
Demander l'adresse précise à l'agence

Recevez les annonces similaires directement par mail