Enfin
chez vous !

maison 
3 pièces 
80m2 
CUERS 
295 000 euros

+4 Afficher toutes les photos
Afficher le diaporama

Caractéristiques détaillées

Surfaces : 80m2 Pièces : 3
Chambres : 2 Calme
Voir toutes les caractéristiques Fermer
  • Villa / Maison 3 pièces  à vendre Cuers 83390
  • Contacter l'agence

    AFFICHER LE NUMÉRO 04 98 01 28 48

    MAISONS VERTES
    Avenue Berthelot
    83160 La valette-du-var

Descriptif du bien

CUERS  / Villa / maison  / 3 pièces
295 000 €
Honoraires à charge du vendeur
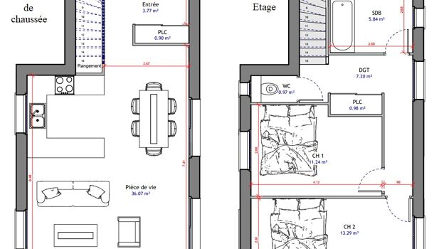
83390 CUERS : PRIX en BAISSE - Coup de coeur ! Maisons Vertes du Var a sélectionné pour vous, avec notre partenaire foncier, sur la commune de Cuers, dans un quartier calme, proche de toutes commodités, des commerces et des écoles, un terrain plat de 196 m² viabilisé. Projet de construction conforme à la règlementation RE 2020 : Une villa en R + 1 de 80,24 m², mitoyenne par la façade Nord, comprenant une très belle pièce de vie de plus de 36 m² et de 2 belles chambres à l'étage. Le terrain et la villa, vous sont proposés à partir de : 295 000 euros Hors frais de notaire (Hors VRD, hors cuisine, hors peinture, hors papier-peint). Selon les disponibilités de notre partenaire foncier. (Visuel non contractuel).
Référence : TM Cuers 196-80 m²

Caractéristiques détaillées

Surfaces : 80m2 Pièces : 3
Chambres : 2 Calme
Voir toutes les caractéristiques Fermer

Contacter l'agence

Contacter l'agence

AFFICHER LE NUMÉRO 04 98 01 28 48

MAISONS VERTES
Avenue Berthelot
83160 La valette-du-var

Localisation : CUERS

Le vendeur n'a pas communiqué l'adresse précise de ce bien
Demander l'adresse précise à l'agence

Recevez les annonces similaires directement par mail