Enfin
chez vous !

maison 
4 pièces 
77m2 
JAUJAC 
229 000 euros

+1 Afficher toutes les photos
Afficher le diaporama
Publiée il y a 1 jour

Caractéristiques détaillées

Surfaces : 77m2 Pièces : 4
Chambres : 3 Nb. de WC : 2
Nb. de salles d'eau : 1 Climatisation
Chauffage : individuel Calme
Terrasse Nb. Parking : 2
Année de construction : 2025
Voir toutes les caractéristiques Fermer

Descriptif du bien

JAUJAC  / Villa / maison  / 4 pièces
229 000 €
Honoraires à charge du vendeur
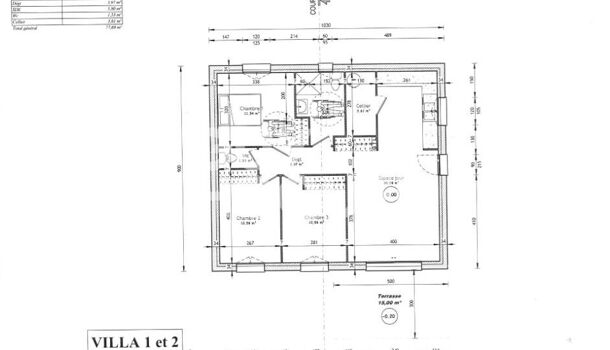
Votre Agence Couleurs Sud Immobilier d'Aubenas, vous propose une maison neuve de plain-pied sur la Commune de Jaujac. Située dans un village calme, agréable et très recherché, cette maison neuve de plain-pied en cours de finition vous offre confort moderne, accessibilité et performance énergétique. D'une surface habitable de 77,69 m², elle se compose de : Descriptif du bien : - 3 chambres, dont une chambre conforme aux normes PMR (personnes à mobilité réduite) - Une cuisine ouverte sur le séjour, lumineuse et conviviale - Un cellier idéale pour le rangement ou la buanderie - Une salle d'eau (PMR) avec WC intégré - Un deuxième WC indépendant, pratique pour la vie quotidienne - Un système de chauffage efficace : Climatisation réversible dans l'espace de vie Radiateurs électriques dans les chambres - Menuiseries extérieures en PVC gris anthracite avec volets roulants électriques - Baies vitrées en aluminium, également équipées de volets roulants électriques - Porte d'entrée en métal sécurisée - Extérieurs entièrement engazonnés - 2 places de stationnement en extérieur, en béton balayé gris clair Construite selon la norme RE 2020, cette maison garantit un confort thermique optimal et une consommation énergétique maîtrisée. DPE en cours de réalisation. Il sera établi à l'achèvement de la construction, conformément la réglementation en vigueur. Idéale pour une résidence principale ou un investissement locatif dans un cadre de vie paisible. Livraison prévue : fin septembre 2025 Contactez-nous pour plus d'informations ou pour organiser une visite.
Référence : 7188-1212

Caractéristiques détaillées

Surfaces : 77m2 Pièces : 4
Chambres : 3 Nb. de WC : 2
Nb. de salles d'eau : 1 Climatisation
Chauffage : individuel Calme
Terrasse Nb. Parking : 2
Année de construction : 2025
Voir toutes les caractéristiques Fermer

Contacter l'agence

Contacter l'agence

AFFICHER LE NUMÉRO 04 75 89 07 07

GUY HOQUET L'IMMOBILIER
7 Bld. Jean Mathon
07200 Aubenas

Localisation : JAUJAC

Le vendeur n'a pas communiqué l'adresse précise de ce bien
Demander l'adresse précise à l'agence

Recevez les annonces similaires directement par mail