Enfin
chez vous !

maison 
7 pièces 
170m2 
MARSEILLE 12EME 
1 395 000 euros

+4 Afficher toutes les photos
Afficher le diaporama

Caractéristiques détaillées

Surfaces : 170m2 Pièces : 7
Chambres : 4 Cave
Nb. de salles d'eau : 1 WC séparés
Nb. de salles de bain : 1 Nb. de WC : 2
Nb. Etages : 1 Chauffage : individuel
Climatisation Orientation : sud est ouest
Quartier : Saint-Julien Piscine
Jardin Parking
Année de construction : 2026 Refait à neuf
Voir toutes les caractéristiques Fermer
  • Villa / Maison 7 pièces  à vendre Marseille 12eme 13012
  • Contacter l'agence

    AFFICHER LE NUMÉRO 04 96 20 33 03
    RECOULY-DESBIEF IMMOBILIER
    321 Corniche J. F. Kennedy
    13007 Marseille

Descriptif du bien

MARSEILLE 12EME  / Villa / maison  / 7 pièces
1 395 000 €
Honoraires à charge du vendeur
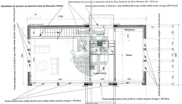
SAINT JULIEN - VILLA T7 CONTEMPORAINE AVEC PRESTATIONS HAUT DE GAMME Dans un environnement résidentiel et arboré sans aucune nuisance à proximité, villa T7 sur une parcelle de plus de 900 m². La maison est en cours de finitions. Le jardin plat pourra accueillir une piscine (sous réserve d'autorisation de l'urbanisme) et de nombreux emplacements de parking sont prévus. La maison disposera des assurances décennales des artisans et de l'assurance Dommage-Ouvrage. Au rez de jardin, une entrée, une grande pièce de vie, une cuisine avec cellier, un bureau de 18 m² (éventuellement chambre supplémentaire) et des toilettes. À l'étage, une suite parentale avec dressing et salle de bain, trois chambres, une salle d'eau et des toilettes Un grand sous-sol de plus de 80 m² avec local technique, buanderie et belles pièces de 21 et 32 m² avec fenêtres. La villa disposera de très belles prestations : chauffage et rafraichissement par le sol, matériaux de qualité, fenêtres et volets roulants bois, carrelage 120x120, chauffe-eau thermodynamique, stores électrique, chute à linge. ). La cuisine ne sera pas équipée afin de laisser le choix aux futurs acquéreurs. Honoraires de 5% à la charges des acquéreurs. Prix du bien hors honoraires : 1 325 250euros Bien proposé par Adrien PIERROT- 06 75 12 24 45 - Agent commercial RSAC n°914 425 335 Marseille Pour le compte de RECOULY SAINT BARNABÉ SARL au capital de 1000 euros - 72 rue Montaigne 13012 Marseille - RCS n° 843 211 418 Marseille Titulaire de la carte professionnelle 'Transaction sur immeubles et fonds de commerce' - n° CPI 1310 2020 000 038 665 CCI Marseille Provence Gérant : Franck Desbief - Adhérent de la caisse de Garantie GALIAN 80 Rue de la Boétie 75008 PARIS Les informations sur les risques auxquels ce bien est exposé sont disponibles sur le site Géorisques : www.georisques.gouv.fr Pour tout renseignement ou visite, contactez Adrien PIERROT + 33675122445.
Référence : ADPI-

Caractéristiques détaillées

Surfaces : 170m2 Pièces : 7
Chambres : 4 Cave
Nb. de salles d'eau : 1 WC séparés
Nb. de salles de bain : 1 Nb. de WC : 2
Nb. Etages : 1 Chauffage : individuel
Climatisation Orientation : sud est ouest
Quartier : Saint-Julien Piscine
Jardin Parking
Année de construction : 2026 Refait à neuf
Voir toutes les caractéristiques Fermer

Contacter l'agence

Contacter l'agence

AFFICHER LE NUMÉRO 04 96 20 33 03
RECOULY-DESBIEF IMMOBILIER
321 Corniche J. F. Kennedy
13007 Marseille

Localisation : MARSEILLE 12EME

Le vendeur n'a pas communiqué l'adresse précise de ce bien
Demander l'adresse précise à l'agence

Recevez les annonces similaires directement par mail