Enfin
chez vous !

maison 
4 pièces 
90m2 
LA MOTHE-ACHARD  
249 500 euros

+9 Afficher toutes les photos
Afficher le diaporama

Caractéristiques détaillées

Surfaces : 90m2 Pièces : 4
Chambres : 3 Nb. de salles d'eau : 1
Chauffage : électrique Cuisine : aménagée, équipée
Environnement : petite ville Terrasse
Garage Année de construction : 1980
Voir toutes les caractéristiques Fermer

Descriptif du bien

LA MOTHE-ACHARD  / Villa / maison  / 4 pièces
249 500 €
Honoraires : 5,09% TTC à la charge de l'acquéreur (237 400 € hors honoraires)
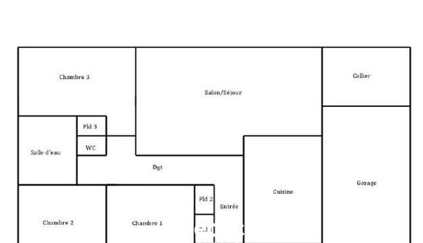
Maison à 5mns à pied du centre bourg, des boulangeries, de la banque, de la pharmacie, de la Mairie, de la poste. et 5mns en voiture du Super U et Lidl Le grand terrain, au fond de la parcelle, peut-être séparé (certificat d'urbanisme validé pour 400 m²) L'entrée dessert : La pièce-de-vie avec insert La cuisine Les 3 chambres de 9.3 à 12.6 m² La salle d'eau avec douche à l'italienne WC indépendant Buanderie avec évier et évacuation pour machines Garage attenant de 24 m² avec porte automatique Garage indépendant de 15 m² Les dépenses électriques sont actuellement de 135? par mois (couple de retraité) L'emplacement vous séduira Réf. DECLIC IMMO 85 DPE : F Les informations sur les risques auxquels ce bien est exposé sont disponibles sur le site Géorisques : www.georisques.gouv.fr. Annonce proposée et rédigée sous la responsabilité éditoriale de VIÉ Guillaume - 07 82 41 45 60 - guillaume.vie@declic.immo - Agent Commercial RSAC N° 847 732 765 Ville du greffe : LA ROCHE SUR YON Honoraires : à la charge de l'acquéreur Prix hors honoraires d'agence : 237 400 ? Prix moyens des énergies indexés sur les années 2021 2022 2023 (abonnement compris). Montant estimé des dépenses annuelles d'énergie pour un usage standard : entre 2 470 ? et 3 400 ? par an.
Référence : 8500519051

Caractéristiques détaillées

Surfaces : 90m2 Pièces : 4
Chambres : 3 Nb. de salles d'eau : 1
Chauffage : électrique Cuisine : aménagée, équipée
Environnement : petite ville Terrasse
Garage Année de construction : 1980
Voir toutes les caractéristiques Fermer

Performances énergétiques

DPE E(253)
GES B(9)
DPE (Diagnostic de Performance Énergétique)
Logement économe
GES (Gaz à Effet de Serre)
Faible émission de GES

Contacter l'agence

Contacter l'agence

AFFICHER LE NUMÉRO 05 46 52 08 96
DECLIC IMMO
101, ter rue Emile Normandin
17000 La rochelle

Localisation : LA MOTHE-ACHARD

Le vendeur n'a pas communiqué l'adresse précise de ce bien
Demander l'adresse précise à l'agence

Recevez les annonces similaires directement par mail