Honoraires à charge du vendeur
Maison T4 avec
jardin et
garage - Perpignan SUD Nouveauté pour ce bien a fort potentiel ! L'agence vous propose cette villa a rafraichir située dans un environnement
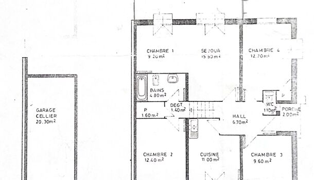
calme danbs le quartier POrte d'Espagne à Perpignan, cette maison T4 de 104 m², construite en 2005, est édifiée sur un terrain clos et arboré de 380 m². Caractéristiques principales : Rez-de-chaussée : Spacieuse pièce à vivre de 44 m² aménagée en deux espaces.
Cuisine indépendante. 2 chambres. WC indépendant. Étage : 1 chambre supplémentaire. Salle de bain. Extérieur : Garage attenant + car-port pour 2 véhicules. Jardin arboré avec cabanon et
cuisine d'été.
Terrasse couverte de 13 m² idéale pour vos repas en extérieur. Prestations : Huisseries double vitrage récentes. Volets roulants électriques. Ce bien est idéal pour une famille ou pour recevoir vos proches dans un cadre paisible tout en restant proche des commodités. Pour toute information supplémentaire ou pour organiser une visite, contactez-moi dès maintenant. Honoraires à la charge acquéreur. Retrouvez l'intégralité de nos biens sur le site web de l'agence.