Enfin
chez vous !

maison 
5 pièces 
125m2 
LA SEYNE-SUR-MER  
750 300 euros

+7 Afficher toutes les photos
Afficher le diaporama

Caractéristiques détaillées

Surfaces : 125m2 Pièces : 5
Chambres : 4 Nb. de salles d'eau : 2
Nb. de salles de bain : 1 Nb. de WC : 3
Climatisation Chauffage : AUTRE
Cuisine : Americaine -Semi-equipee Orientation : SUD-OUEST
Environnement : QUARTIER RÉSIDENTIEL Terrasse
Jardin Garage
Parking Nombre de lots de la copropriété : 6
Voir toutes les caractéristiques Fermer
  • Villa / Maison 5 pièces  à vendre Seyne-sur-Mer (La) 83500

Descriptif du bien

LA SEYNE-SUR-MER  / Villa / maison  / 5 pièces
750 300 €
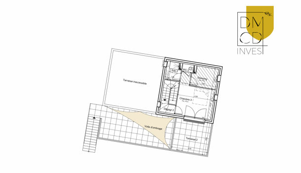
Dans un lottissement résidentiel intimiste et sécurisé de quelques villas seulement, nichées dans un environnement verdoyant remarquable. Superbes vues mer dominantes sur la rade de toulon. À proximité immédiate du centre ville et du port de la seyne sur mer. Découvrez sans plus tarder cette magnifique villa à l'architecture contemporaine d'une surface habitable de 125 m² et 565 m² de jardins privatifs. Jardin piscinable. Le premier niveau de 75 m² accueille l'espace séjour / cuisine ouvert sur une trés belle terrasse de 32 m² et vue mer, deux chambres, une salle de bains, un grans cellier de rangement, un wc indépendant. Toutes les pièces permettent d'accéder à un immense jardin privatif de 395 m² orienté sud-ouest. L'étage est dédié à la suite parentale de 27 m² avec dressing, salle d'eau et wc indépendant. Accès à une belle terrasse privative de 15 m² et vue mer. Le sousplex accueille un studio indépendant de 24 m² avec salle d'eau et wc, ainsi qu'un bel extérieur de 125 m². Idéal pour recevoir amis et famille en toute indépendance. Stationnements : 1 garage privatif, 1 place de parking et la posssibilité de garer plusieurs véhicules dans l'enceinte de la villa. Prestations standing : carrelage 60 x 60cms, doubles vitrages, baies vitrées coulissantes et ouvrantes, chauffage / climatisation réversible, wc suspendus, visiophone, domotique. Découvrez sans plus tarder ce bien d'exception. Pour tout renseignement, jacques roche : 06.11. 56.02. 65 / mail : jacques@dmcdinvest.com (photos à caractère d'illustration / fnr ).
Référence : RJVVI50014048

Caractéristiques détaillées

Surfaces : 125m2 Pièces : 5
Chambres : 4 Nb. de salles d'eau : 2
Nb. de salles de bain : 1 Nb. de WC : 3
Climatisation Chauffage : AUTRE
Cuisine : Americaine -Semi-equipee Orientation : SUD-OUEST
Environnement : QUARTIER RÉSIDENTIEL Terrasse
Jardin Garage
Parking Nombre de lots de la copropriété : 6
Voir toutes les caractéristiques Fermer

Contacter l'agence

Localisation : LA SEYNE-SUR-MER

Le vendeur n'a pas communiqué l'adresse précise de ce bien
Demander l'adresse précise à l'agence

Recevez les annonces similaires directement par mail