Enfin
chez vous !

Terrain 
589m2 
MORLAÀS 
69 000 euros

+7 Afficher toutes les photos
Afficher le diaporama

Caractéristiques détaillées

Surfaces : 589m2 Lotissement
Calme
Voir toutes les caractéristiques Fermer

Descriptif du bien

MORLAÀS  / Terrain
69 000 €
Honoraires à charge du vendeur
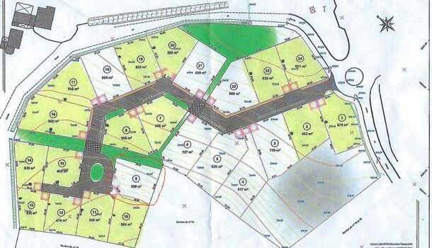
Nous vous proposons à la vente le lot n°9 situé au sein du lotissement « Domaine Jacques Prévert », sur la commune de Morlaàs (64). ? Surface totale : 589 m² ? Emprise au sol : 147 m² ? Terrain borné et viabilisé ? Environnement calme et résidentiel Idéalement situé, ce terrain vous permettra de réaliser votre projet de construction dans un cadre agréable et proche des commodités. ? Secteur recherché, à quelques minutes de Pau, avec écoles, commerces et services accessibles rapidement. Honoraires à la charge du vendeur. Les informations sur les risques auxquels ce bien est exposé sont disponibles sur le site Géorisques : georisques. gouv. fr. Votre conseiller SAS IMMOBILIERE SAINT-GEORGES : Sébastien LAFON Agent commercial (Entreprise individuelle) RSAC 498 744 762 Inscrit au R. S.A. C AUCH RCP 101PGMAN-AW11003.
Référence : 17103

Caractéristiques détaillées

Surfaces : 589m2 Lotissement
Calme
Voir toutes les caractéristiques Fermer

Contacter l'agence

Localisation : MORLAÀS

Le vendeur n'a pas communiqué l'adresse précise de ce bien
Demander l'adresse précise à l'agence

Recevez les annonces similaires directement par mail