Enfin
chez vous !

Appartement 
3 pièces 
59m2 
BEZANNES 
825 euros

+1 Afficher toutes les photos
Afficher le diaporama
Publiée il y a 12 jours

Caractéristiques détaillées

Surfaces : 59m2 Pièces : 3
Chambres : 2 Nb. de WC : 1
Nb. de salles de bain : 1 Etage du bien : 1er
Accès handicapés Chauffage : individuel gaz radiateur
Nb. Etages : 4 Ascenseur
Quartier : PARC / GARE / CREPS Balcon
Garage Année de construction : 2024
Copropriété Nombre de lots de la copropriété : 192
Loi Pinel
Voir toutes les caractéristiques Fermer
  • Appartement 3 pièces  à louer Bezannes 51430

Descriptif du bien

BEZANNES  / Appartement  / 3 pièces
825 € CC/mois
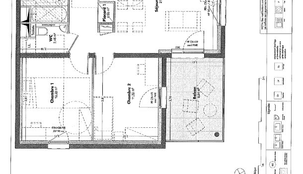
Appartement T3 situé à BEZANNES au1 er étage dans la résidence LE FAIRWAY, cet appartement d'une surface de 59,93 m², avec un balcon de 9 m². Comprenant : Entrée avec placard rangement, salle de bains, wc avec lave mains, pièce de vie ouverte sur une cuisine aménagée et équipée, 2 chambres. Chauffage et production d'eau chaude au gaz 1 garage fermé en sous-sol complète ce bien. LOI PINEL pour ce bien. Loyer hors charges : 752EUR + Provisions : 73EUR. soit 825EUR CC-Dépôt de garantie : 752EUR. Honoraires de location : 659EUR (Rédaction bail : 478EUR / Frais état des lieux : 180EUR)- DPE (consommations énergétiques, prix moyen indexés sur l'année 2021) soit un montant estimé des dépenses annuelles d'énergie pour un usage standard entre 320EUR EUR et 432EUR classe énergie : C et émissions de gaz : C « Les informations sur les risques auxquels ce bien est exposé sont disponibles sur le site Géorisques : www.georisques.gouv.fr ». Contact : SACCLO 30 Bld de la Paix 51100 REIMS Tél 07 85 38 76 26 - e-mail : mathilde.brouardelle@sacclo.fr.

Conditions
Loyer : 825 € par mois charges comprises
Charges locatives : 73 €
Dépôt de garantie : 752 €
Honoraires à charge du locataire : 659 € TTC
Référence : 920

Caractéristiques détaillées

Surfaces : 59m2 Pièces : 3
Chambres : 2 Nb. de WC : 1
Nb. de salles de bain : 1 Etage du bien : 1er
Accès handicapés Chauffage : individuel gaz radiateur
Nb. Etages : 4 Ascenseur
Quartier : PARC / GARE / CREPS Balcon
Garage Année de construction : 2024
Copropriété Nombre de lots de la copropriété : 192
Loi Pinel
Voir toutes les caractéristiques Fermer

Performances énergétiques

DPE A(55)
GES C(11)
DPE (Diagnostic de Performance Énergétique)
Logement économe
GES (Gaz à Effet de Serre)
Faible émission de GES

Contacter l'agence

Localisation : BEZANNES

Le vendeur n'a pas communiqué l'adresse précise de ce bien
Demander l'adresse précise à l'agence

Recevez les annonces similaires directement par mail