Enfin
chez vous !

Bureau 
2 pièces 
60m2 
RODEZ 
674 euros

+3 Afficher toutes les photos
Afficher le diaporama

Caractéristiques détaillées

Surfaces : 60m2 Pièces : 2
Cave Ascenseur
Accès handicapés Parking
Interphone
Voir toutes les caractéristiques Fermer
  • Bureau 2 pièces  à louer Rodez 12000
  • Contacter l'agence

    AFFICHER LE NUMÉRO 05 65 73 71 10
    Immo de France - Rodez (2)
    22, Bd Laromiguiere
    12000 Rodez

Descriptif du bien

RODEZ  / Bureau  / 2 pièces
674 € CC/mois
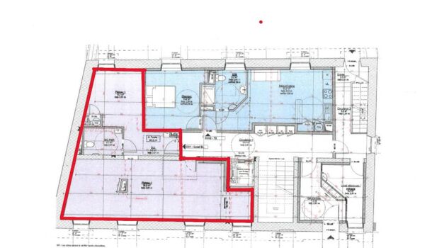
Local professionnel ou commercial à proximité immédiate du centre ville de plain pied au RDC d'une surface approximative de 60 m² permettant d'aménager 3 bureaux avec banque d'accueil et salle d'attente. WC PMR. Un parking et une cave. Les informations sur les risques auxquels ce bien est exposé sont disponibles sur le site Géorisques : www. georisques. gouv. fr.

Conditions
Loyer : 674 € par mois charges comprises
Charges locatives : 74 €
Dépôt de garantie : 600 €
Honoraires à charge du locataire : 912 € TTC
Référence : 1787

Caractéristiques détaillées

Surfaces : 60m2 Pièces : 2
Cave Ascenseur
Accès handicapés Parking
Interphone
Voir toutes les caractéristiques Fermer

Performances énergétiques

DPE C(201)
GES A(5)
DPE (Diagnostic de Performance Énergétique)
Logement économe
GES (Gaz à Effet de Serre)
Faible émission de GES

Contacter l'agence

Contacter l'agence

AFFICHER LE NUMÉRO 05 65 73 71 10
Immo de France - Rodez (2)
22, Bd Laromiguiere
12000 Rodez

Localisation : RODEZ

Le vendeur n'a pas communiqué l'adresse précise de ce bien
Demander l'adresse précise à l'agence

Recevez les annonces similaires directement par mail