Enfin
chez vous !

Appartement 
2 pièces 
41m2 
ARGELÈS-SUR-MER 
199 000 euros

+6 Afficher toutes les photos
Afficher le diaporama

Caractéristiques détaillées

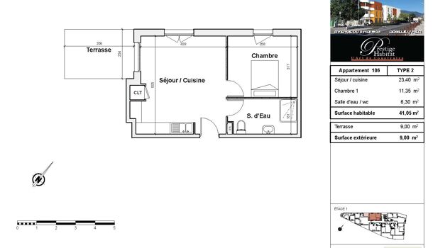
Surfaces : 41m2 Pièces : 2
Chambres : 1 Nb. de salles d'eau : 1
Nb. de WC : 1 Climatisation
Etage du bien : 2eme Accès handicapés
Ascenseur Terrasse
Parking Refait à neuf
Voir toutes les caractéristiques Fermer
  • Appartement 2 pièces  à vendre Argelès-sur-Mer 66700
  • Contacter l'agence

    AFFICHER LE NUMÉRO 07 84 91 33 89 4

    EFFICAC ' IMMO
    BAT A rés.le Colisée 2 av.Angel Guimera
    66180 Villeneuve de raho

Descriptif du bien

ARGELÈS-SUR-MER  / Appartement  / 2 pièces
199 000 €
T2 neuf avec terrasse et parking Efficac'Immo vous propose : Appartement 2 pièces neuf avec frais de notaire réduits, assurances décennales et dommage ouvrage ! Venez découvrir ce beau 2 pièces de 41 m² bénéficiant d'une belle vue sur le Canigou, situé au 2eme étage avec ascenseur, dans une résidence de standing à Argelès-sur-Mer. Tout juste livré, l'appartement se compose : D'un séjour lumineux avec cuisine ouverte (cuisine au choix), D'une chambre avec placards intégrés, D'une salle d'eau moderne avec WC, D'une terrasse de 9 m² Et d'une place de parking privative. Primo-accédants ? Profitez du Prêt à Taux Zéro pour augmenter votre capacité d'emprunt, et accédez à un logement neuf, économe et conforme aux dernières normes environnementales. Swann VELLARD, votre conseillère Efficac'Immo immatriculée au RSAC de PERPIGNAN sous le numéro 900 140 559. Les informations sur les risques auxquels ce bien est exposé sont disponibles sur le site Géorisques : www.georisques.gouv.fr.
Référence : 82948523A

Caractéristiques détaillées

Surfaces : 41m2 Pièces : 2
Chambres : 1 Nb. de salles d'eau : 1
Nb. de WC : 1 Climatisation
Etage du bien : 2eme Accès handicapés
Ascenseur Terrasse
Parking Refait à neuf
Voir toutes les caractéristiques Fermer

Performances énergétiques

DPE A(1)
GES NC
DPE (Diagnostic de Performance Énergétique)
Logement économe
GES (Gaz à Effet de Serre)
Faible émission de GES

Contacter l'agence

Contacter l'agence

AFFICHER LE NUMÉRO 07 84 91 33 89 4

EFFICAC ' IMMO
BAT A rés.le Colisée 2 av.Angel Guimera
66180 Villeneuve de raho

Localisation : ARGELÈS-SUR-MER

Le vendeur n'a pas communiqué l'adresse précise de ce bien
Demander l'adresse précise à l'agence

Recevez les annonces similaires directement par mail