Enfin
chez vous !

maison 
4 pièces 
98m2 
ANDILLY 
243 300 euros

+9 Afficher toutes les photos
Afficher le diaporama
Publiée il y a 11 jours

Caractéristiques détaillées

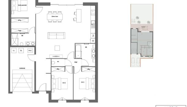
Surfaces : 98m2 Pièces : 4
Chambres : 3
Voir toutes les caractéristiques Fermer

Descriptif du bien

ANDILLY  / Villa / maison  / 4 pièces
243 300 €
À ANDILLY sur un terrain de 387 m², MAISONS LARA vous propose de réaliser cette maison neuve d'une surface de 98 m² habitables avec 3 chambres. MAISONS LARA vous propose les prestations suivantes : - Plan sur-mesure et personnalisé de 2 à 5 chambres - Mode de chauffage au choix - Grands choix d'équipements et de prestations - Matériaux de qualité selon les normes en vigueur - Accompagnement dans le choix et l'acquisition du terrain - Construction conforme à la nouvelle RE 2020 Demandez une étude gratuite et personnalisée de votre projet de construction ! Contactez Jérémy CHOBELET au 06 20 33 80 07 (Maisons Lara Nord - Agence d'Aytré). Prix avec assurance dommages-ouvrage comprise, hors sol des chambres et peintures intérieures, terrain viabilisé, assainissement compris, VRD non compris, adaptation non comprise, frais de notaire non compris, taxes non comprises, frais divers non compris. Terrain sélectionné et vu pour vous sous réserve de disponibilité et au prix indiqué par notre partenaire foncier. Conditions et visuels non contractuels. Cette annonce a été créée et diffusée avec le logiciel VITAHOME.
Référence : TMJC015352DE611DE2

Caractéristiques détaillées

Surfaces : 98m2 Pièces : 4
Chambres : 3
Voir toutes les caractéristiques Fermer

Contacter l'agence

Contacter l'agence

AFFICHER LE NUMÉRO 05 46 44 27 58

MAISONS LARA
72, Avenue Edmond Grasset
17440 Aytre

Localisation : ANDILLY

Le vendeur n'a pas communiqué l'adresse précise de ce bien
Demander l'adresse précise à l'agence

Recevez les annonces similaires directement par mail