Enfin
chez vous !

maison 
5 pièces 
120m2 
LA GARDE  
912 000 euros

+3 Afficher toutes les photos
Afficher le diaporama

Caractéristiques détaillées

Surfaces : 120m2 Pièces : 5
Chambres : 4 Nb. de WC séparés : 2
Nb. de salles de bain : 1 Nb. de salles d'eau : 1
Lotissement Calme
Terrasse
Voir toutes les caractéristiques Fermer
  • Villa / Maison 5 pièces  à vendre Garde (La) 83130
  • Contacter l'agence

    AFFICHER LE NUMÉRO 04 98 01 28 48

    MAISONS VERTES
    Avenue Berthelot
    83160 La valette-du-var

Descriptif du bien

LA GARDE  / Villa / maison  / 5 pièces
912 000 €
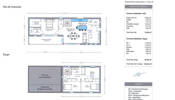
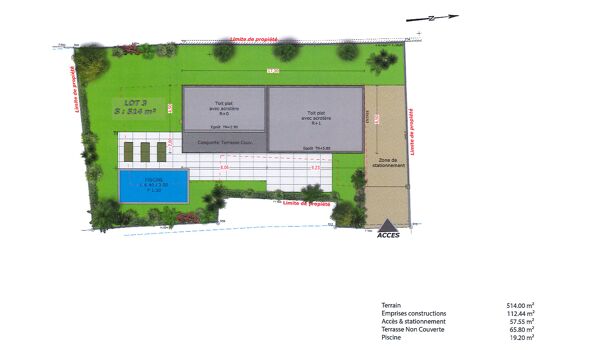
83130 - LA GARDE, EXECPTIONNEL ! Maisons Vertes du Var a sélectionné pour vous, avec notre partenaire foncier, sur la commune de LA GARDE, dans un quartier pavillonnaire calme et verdoyant situé entre Le Cap-Brun et le Pradet, un terrain plat, piscinable, viabilisé de 514 m² dans un petit lotissement. Vous avez un rêve, nous avons le savoir-faire ! Nous réaliserons pour vous avec des prestations de qualité cette villa en R + 1 d'environ 120 m² comprenant au RDC une pièce de vie spacieuse, une suite parentale, un cellier, un WC, et une terrasse couverte et à l'étage 3 belles chambres, une salle de bain et un WC indépendant. Projet de construction conforme à la règlementation RE 2020. Le terrain et la villa, vous sont proposés à partir de : 912 000 euros HORS FRAIS DE NOTAIRE * (Hors terrassement, hors VRD, hors cuisine, hors peinture). Selon les disponibilités de notre partenaire foncier. (Visuels non contractuels) * Sur le terrain uniquement.
Référence : LA GARDE - TM 514-120m²

Caractéristiques détaillées

Surfaces : 120m2 Pièces : 5
Chambres : 4 Nb. de WC séparés : 2
Nb. de salles de bain : 1 Nb. de salles d'eau : 1
Lotissement Calme
Terrasse
Voir toutes les caractéristiques Fermer

Contacter l'agence

Contacter l'agence

AFFICHER LE NUMÉRO 04 98 01 28 48

MAISONS VERTES
Avenue Berthelot
83160 La valette-du-var

Localisation : LA GARDE

Le vendeur n'a pas communiqué l'adresse précise de ce bien
Demander l'adresse précise à l'agence

Recevez les annonces similaires directement par mail